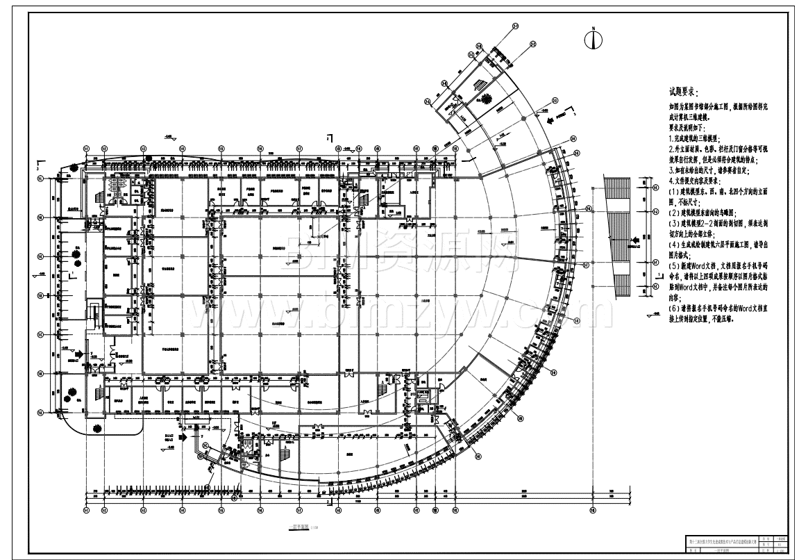
这是一份全国大学生先进成图技术与产品信息建模创新大赛的试题,考试内容为大学图书馆BIM建模,本套资料包含已经创建好的BIM模型、大量可复用的族文件以及配套Revit建模图纸(PDF格式),非常适合BIM进阶学习!
资源预览

声明:本站资源全部来自公开网络购买或收集,水印不代表署名仅用于防盗,版权归原作者所有。 版权说明:资源均源于互联网收集整理,不保证资源的可用及完整性,仅供个人学习研究,请勿商用。喜欢记得支持正版,若侵犯第三方权益,请及时联系我们删除!《版权声明》
这是一份全国大学生先进成图技术与产品信息建模创新大赛的试题,考试内容为大学图书馆BIM建模,本套资料包含已经创建好的BIM模型、大量可复用的族文件以及配套Revit建模图纸(PDF格式),非常适合BIM进阶学习!

评论0